Часть 2. Дом Сепанг (Sepang House) в Малайзии от Eleena Jamil Architect.
Этот необычный загородный дом с эффектной односкатной крышей с длинными свесами, затенёнными террасами и балконами построен в малоэтажном пригородном районе.
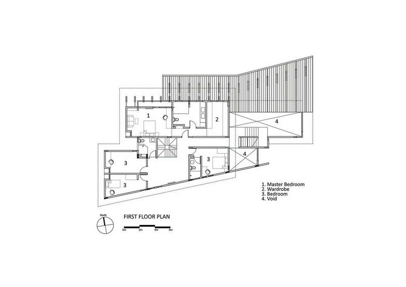
Современные формы и линии сочетаются с элементами местной традиционной архитектуры. В доме три этажа, роскошная крытая терраса и открытый бассейн. Основные материалы — бетон, дерево и кирпич.
Часть 2. Дом Сепанг (Sepang House) в
