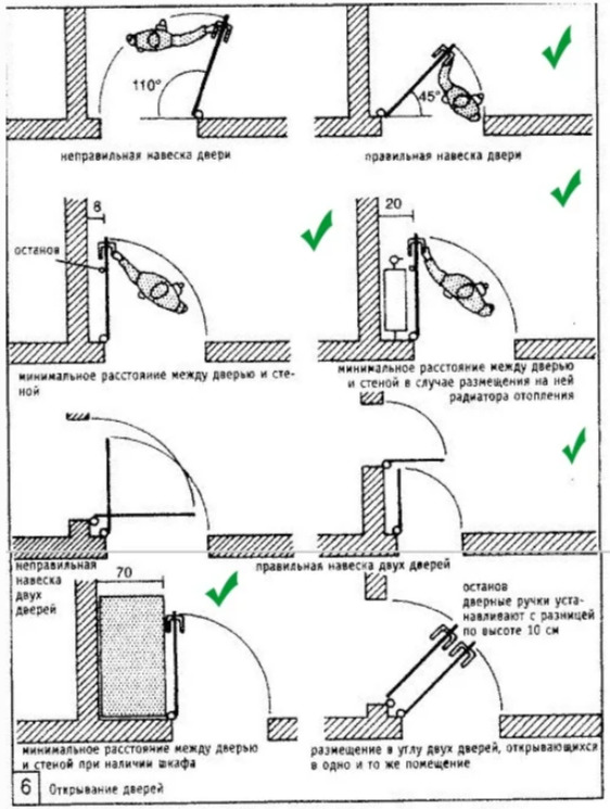
Открывание дверей в сан.узле как и для во всех помещениях небольшой площади, должны быть наружу, так как открывая дверь, человек будет сам становиться препятствием, что исключено, исходя из правил безопасности.
Двери должно располагаться таким образом, чтобы при открывании они не блокировали друг друга и не мешали удобному проходу.
Используйте современные магнитные ограничители открывания дверей, чтобы обезопасить проходы и сохранить отделку стен.
Расположение и открывание дверей должно быть разумным.
В больших помещениях предпочтительно посередине перегородки, в малых-ближе к перегородке.
Открывая дверь в помещение, человек должен получать представление о пространстве.
Минимальное расстояние двери от перегородки 10 см с учетом ручки двери и стандартный размер наличника 8-10 см. Есть модели классических дверей с широкими наличниками. Всегда нужно учитывать размер наличника при установке двери близко к мебели или стене, а также при планировании точек размещения выключателей и розеток. Выключатели следует располагать удобно по ходу движения людей в квартире и, чтобы открытые двери их не закрывали.
Вид открывания двери запомнить просто: петли слева- левое открывание. Справа- правое.Все двери в квартире желательно подобрать из одной коллекции.
Странно выглядят разные двери, расположенные рядом. Исключение только для противопожарных дверей и дверей в сауны.



