Детали проекта:
Архитекторы: BarlisWedlick
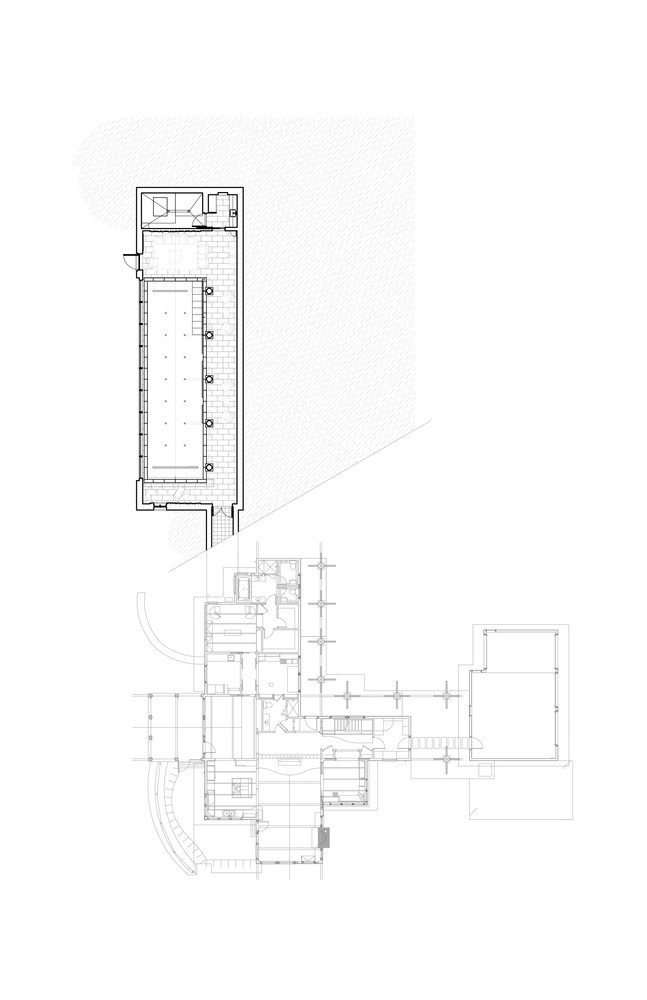
Расположение: Old Chatham, United States
Площадь: 2750 ft² (~255 м²)
Год реализации проекта: 2014
Фотограф: Reto Guntli
Дом для отпуска Lazy Bear Pool house площадью 2750 кв. футов от BarlisWedlick расположен в поместье площадью 115 акров в горах Катскилл. Современный поворот в традиционной деревенской архитектуре, дом, в котором находится бассейн длиной 54 фута, является продолжением главного дома комплекса, доступ к которому осуществляется по проходу, построенному частично под землей.









