ЖК «SOUL»

Контекст и градостроительство
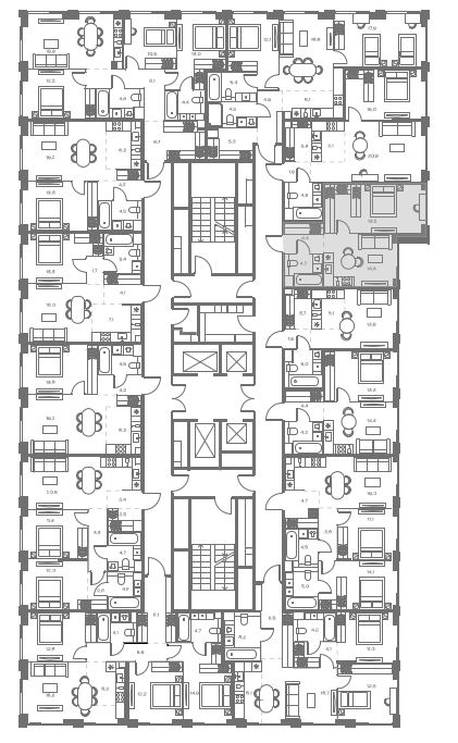
Локация объективно сильная: район Аэропорт, пешая доступность метро «Сокол» и МЦД, сложившаяся городская ткань. Однако заявленный бизнес-класс не подтверждается градостроительной логикой. Высотность до 35 этажей и высокая плотность при значительном количестве квартир на этаже (до 13) формируют ощущение перегруженности. При таком масштабе застройки проект ближе к плотному городскому кварталу массового сегмента, чем к камерному бизнес-классу.
Архитектура и фасады
Фасадные решения сдержанные и аккуратные. Цветовая гамма нейтральная, без агрессивных контрастов, что позволяет комплексу вписаться в окружение. Использование клинкера, камня и металла выглядит достойно, без визуального шума. Архитектура не выдающаяся, но профессионально выполненная и не вызывает отторжения.
Объёмно-композиционные и планировочные решения
Композиционно проект построен на контрасте башен и малоэтажных корпусов, что добавляет вариативности, но не снимает проблему плотности. Планировки преимущественно простые и рациональные, без выраженной премиальности. Большое количество квартир на этаже снижает уровень приватности и усиливает ощущение «городского потока», что больше соответствует сегменту комфорт+/бизнес-массового формата.
Социальные объекты (ДОО, школа)
Школа в составе проекта не предусмотрена, нагрузка ложится на существующую инфраструктуру района. Детские сады на 100 и 200 мест внутри квартала — положительный фактор, но для масштаба комплекса их объём может оказаться ограниченным.
Общественные пространства и инфраструктура
Общественные пространства выполнены качественно с точки зрения дизайна среды: видно, что концепция продумана, благоустройство аккуратное, заявлен культурный сценарий с реставрацией исторического здания. Однако при высокой плотности застройки нагрузка на дворы будет значительной, и для комфортных прогулок жителям, вероятно, придётся чаще пользоваться соседними крупными парками.
Итог
Soul — проект с сильной локацией и достойной архитектурной подачей, но с избыточной плотностью для заявленного бизнес-класса. Это качественный городской квартал с продуманным дизайном среды, однако по уровню приватности и планировочной логике он ближе к плотному массовому бизнес-формату, чем к действительно камерному и премиальному жилью.


















