Задача на проектирование – выдержать все жесткие требования заданные администрацией поселка:
— максимальная площадь дома
— общая площадь, пятная застройки по отношению к общей площади участка
— отступы от проезда и соседей
Кроме этого, на участке уже был расположен фундамент под другую постройку, который нужно было использовать под новый проект. Несмотря на существенные ограничения, проектантам удалось выполнить все требования и пожелания Заказчика.
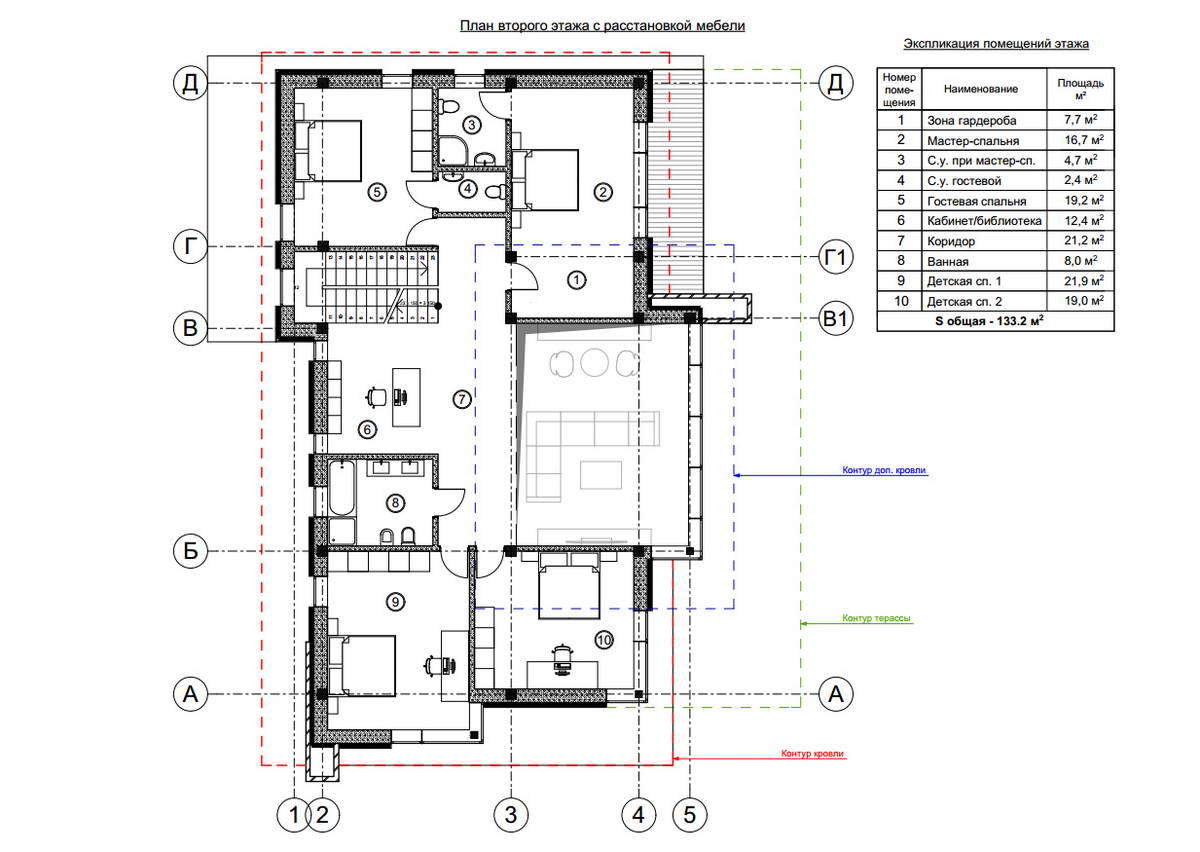
Посадка дома и ориентация основных помещений направлена на то, чтобы максимально освободить участок для благоустройства и получения максимального количества освещения. В результате композиция дома имеет сложную форму с угловыми окнами, а перед домом и сбоку получилась зона с газоном и видом на парковую зону, которая находится сразу за границей участка. Фасады представлены теплыми материалами со сложными текстурами. Панорамное остекление в зоне гостиной имеет прямую связь с террасой и зоной отдыха.
Баланс между эстетикой и практичностью (экономичностью). Как правило, форма дома при определенных условиях напрямую влияет на стоимость дома, если дом в форме куба или прямоугольника, то он имеет определенную стоимость, если же дом членить, выдвигать какие-то элементы, то это влечет к удорожанию первоначальной стоимости. Но в нашем случае -получилось найти баланс, т.к. благодаря уже существующему фундаменту, была возможность сэкономить, и в свою очередь это позволило сделать форму более сложной и разнообразной.
Название проекта: «Vladimir-house»
Архитектура: Сбоев Михаил, мастерская Sboev3 Architect
Расположение: Россия, Москва
Типология: индивидуальный жилой дом
Проектирование: 2017
Общая площадь: 280 м2
Этажность: 2 этажа
Конструктивная схема – ж/б каркас с заполнением кладкой из газобетонных блоков AEROC; частично металлический каркас;
фундамент — монолитный, ленточный;
Перекрытие — монолитное; частично по профлисту (в зоне консольных выносов — террас)
Утепление – плиты из каменной ваты Paroc
Отделка стен
Экстерьер
Клинкерная плитка /кирпич/
Композитне панели /под дерево/
Деревянный сайдинг
Композитные панели /черные/
Интерьер
Стены под покраску
Клинкерная плитка под кирпич
Керамогранит
Покрытия
Экстерьер
Двор – Брусчатка
Терраса – террасная доска и керамогранит
Интерьер
Паркетная доска – спальни
Плитка – керамогранит /с.у./









