ЖК «Пехра»

Контекст и градостроительство
Проект представляет собой плотную жилую застройку, не вписанную в окружающую среду ни по масштабу, ни по характеру. Территория застроена максимально интенсивно, без уважения к ландшафту и потенциалу места. Градостроительная логика сведена к уплотнению, а не к формированию полноценной жилой среды.
Архитектура и фасады
Фасады откровенно слабые и визуально тяжёлые. Плоские, простые и неинтересные, они лишены архитектурной пластичности, ритма и детализации. Используемые материалы и цветовые решения не формируют образ, а лишь маскируют типовую массовую застройку. Архитектура выглядит устаревшей и визуально агрессивной.
Объёмно-композиционные решения
Корпуса Г- и П-образной формы применены механически, без композиционного осмысления. Вместо формирования качественных дворов получены замкнутые пространства с ощущением перенаселённости. Типовая архитектура корпусов фактически испортило потенциально хорошее место, превратив его в стандартный спальный массив.
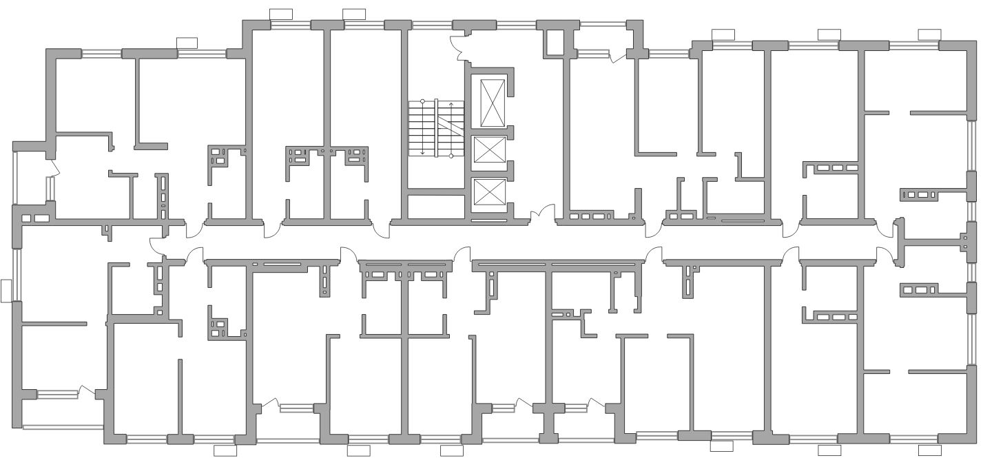
Планировки
Планировочные решения архаичны и по своей логике близки к жилью прошлого века. Высокая плотность, малые площади и большое количество квартир на этаже формируют среду, сравнимую с современной версией коммунального проживания. Такие решения не соответствуют понятию комфортного жилья и ориентированы исключительно на экономику проекта.
Социальные объекты (ДОО, школа)
Детские сады и школа выполнены архитектурно слабо и не связаны с жилыми корпусами ни стилистически, ни концептуально. Фасады ДОО выглядят случайно и чужеродно, а школьное здание по своему облику напоминает крытую парковку или утилитарный ангар, что недопустимо для общественных и образовательных объектов.
Общественные пространства и инфраструктура
Инфраструктура декларируется масштабно, но фактически выглядит неразвитой и вторичной. Общественные пространства решены формально, без сценариев использования и без современного подхода к среде. Комплекс не создаёт ощущения целостного района, а воспринимается как набор плотно расставленных корпусов.
Итог
ЖК «Пехра» — пример плотной массовой застройки, где архитектура, планировки и общественные пространства подчинены исключительно экономике. Проект демонстрирует устаревшие подходы к жилью, низкое качество архитектуры и отсутствие работы с контекстом, что в совокупности не позволяет рассматривать его как полноценную комфортную среду для жизни.











