Жилой квартал «Stellar City»

Контекст и градостроительство
Крупномасштабный проект с высокой плотностью, ориентированный на освоение территории у МКАД. Квартальная структура заявлена, но не наполнена средовым содержанием и архитектурной иерархией.
Архитектура и фасады
Фасады выполнены в незамысловатой, типовой манере, без пластики и детализации. Выделение верхних этажей витражным остеклением носит формальный характер и не формирует выразительный силуэт.
Объёмно-композиционные решения
Корпуса Г- и П-образной формы используются для создания дворов, однако при отсутствии фасадной глубины и масштабирования дворы остаются пространственно слабыми. Архитектура работает как схема, а не как образ.
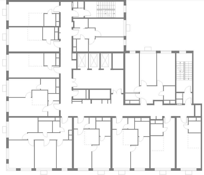
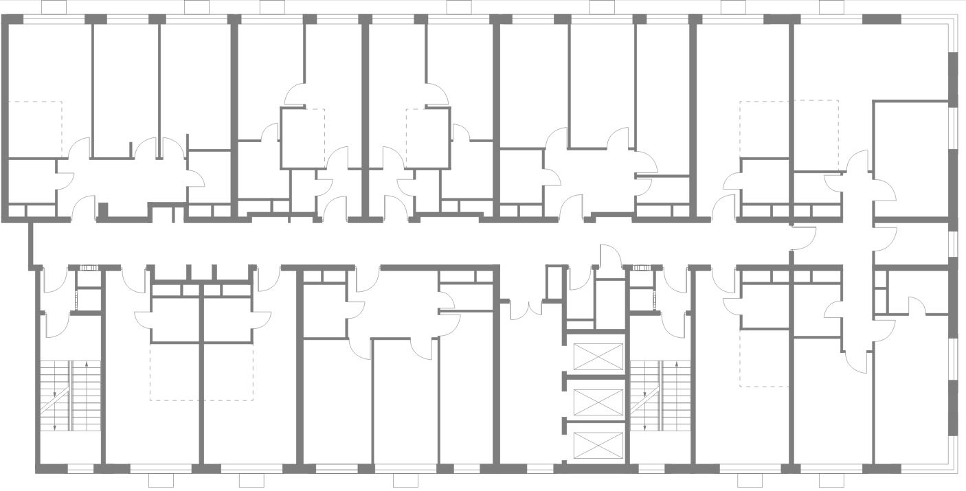
Планировки
Типовые, ориентированные на массовый продукт. Высокая плотность квартир сочетается с минимальной типологической дифференциацией.
Общественные пространства и инфраструктура
Заявленный набор функций (школа, детский сад, сервисы) существует разрозненно. Отсутствует архитектурная корреляция между жилыми корпусами, образовательными объектами и общественными пространствами. Решения выглядят несовременными и устаревшими по подходу.
Итог
Проект с сильной экономикой и инфраструктурным наполнением, но со слабой архитектурой и примитивной формой застройки, где высокая плотность не компенсирована качеством среды.






